Commercial Design Proposal
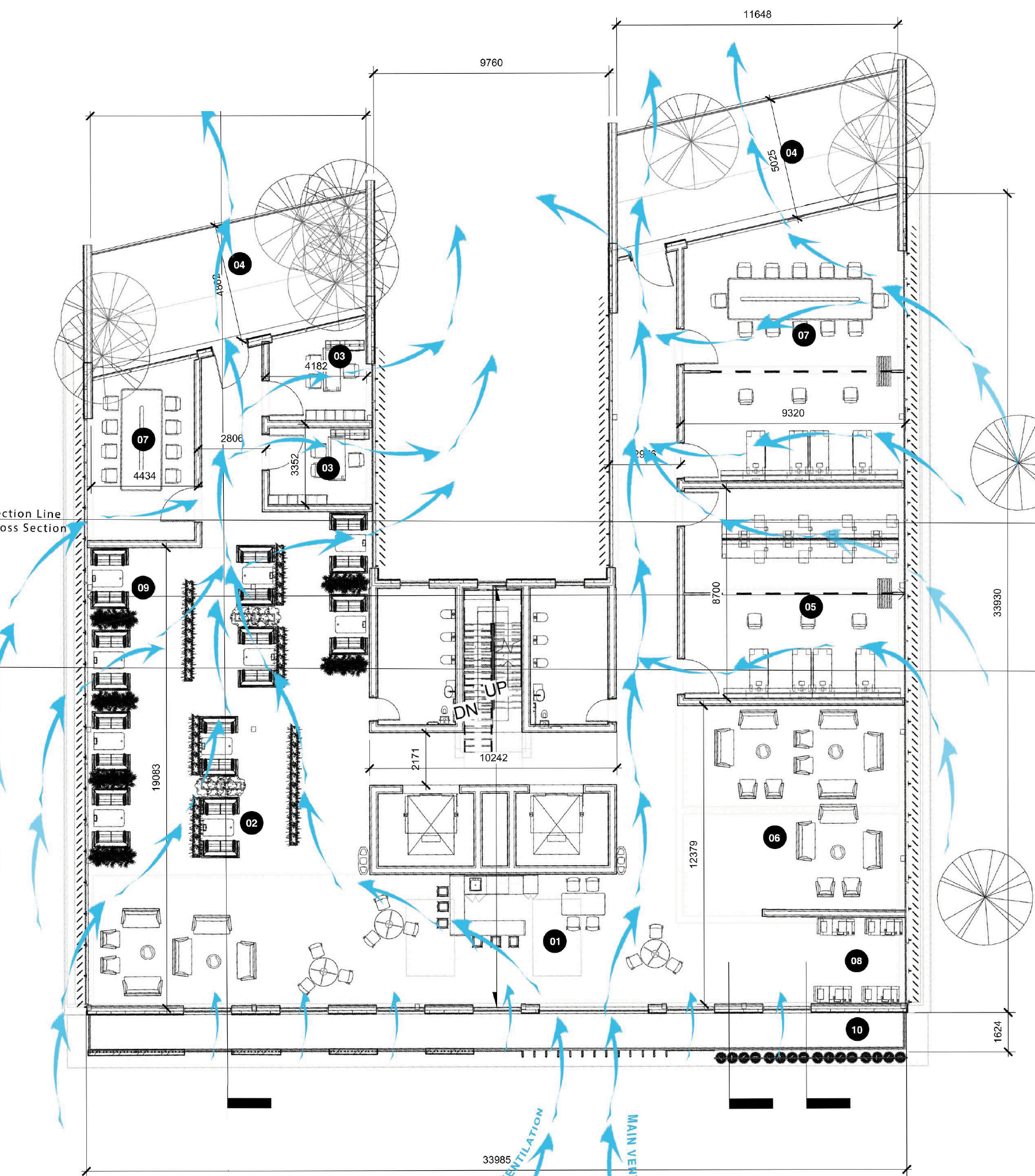
Architecture - Group ProjectUndergraduateYear 3 // Semester 2Auckland CBD Tech Design Sustainability, Technology, EnvironmentalThe environmental design strate gies we have adopted in our final design take into consideration our initial environmental analysis, as well as software limitations we experience during the design process. By considering the climate study, our design incorporated many strategies relevant to vege tation, ventilation, indoor air quality, solar gain and thermal comfort, sustainable material choices, energy consumption reduction, water sensitivity design, and waste management. Through our shad ow study, we discovered the site to be surrounded by either taller buildings, or those with similar elevation. This, paired with a solar radiation analysis, suggested a lack of sunlight in the lower levels of the North-side, leaving East as the predominant solar gaining facade. The site experiences its driest and warmest month in February (73mm rainfall and 20 deg.), and its wettest and coldest in July (121 mm rainfall and 11 .5 deg.). Our biological investigation into the wider site revealed native species such as Nikau and native lilies with benefits such as attracting bees for pollination.