Upper Greys Avenue

Architecture 
Postgraduate
Year 2 // Semester 2
Upper Greys Ave
 Sustainability, Refurbishment, Passive, Heritage

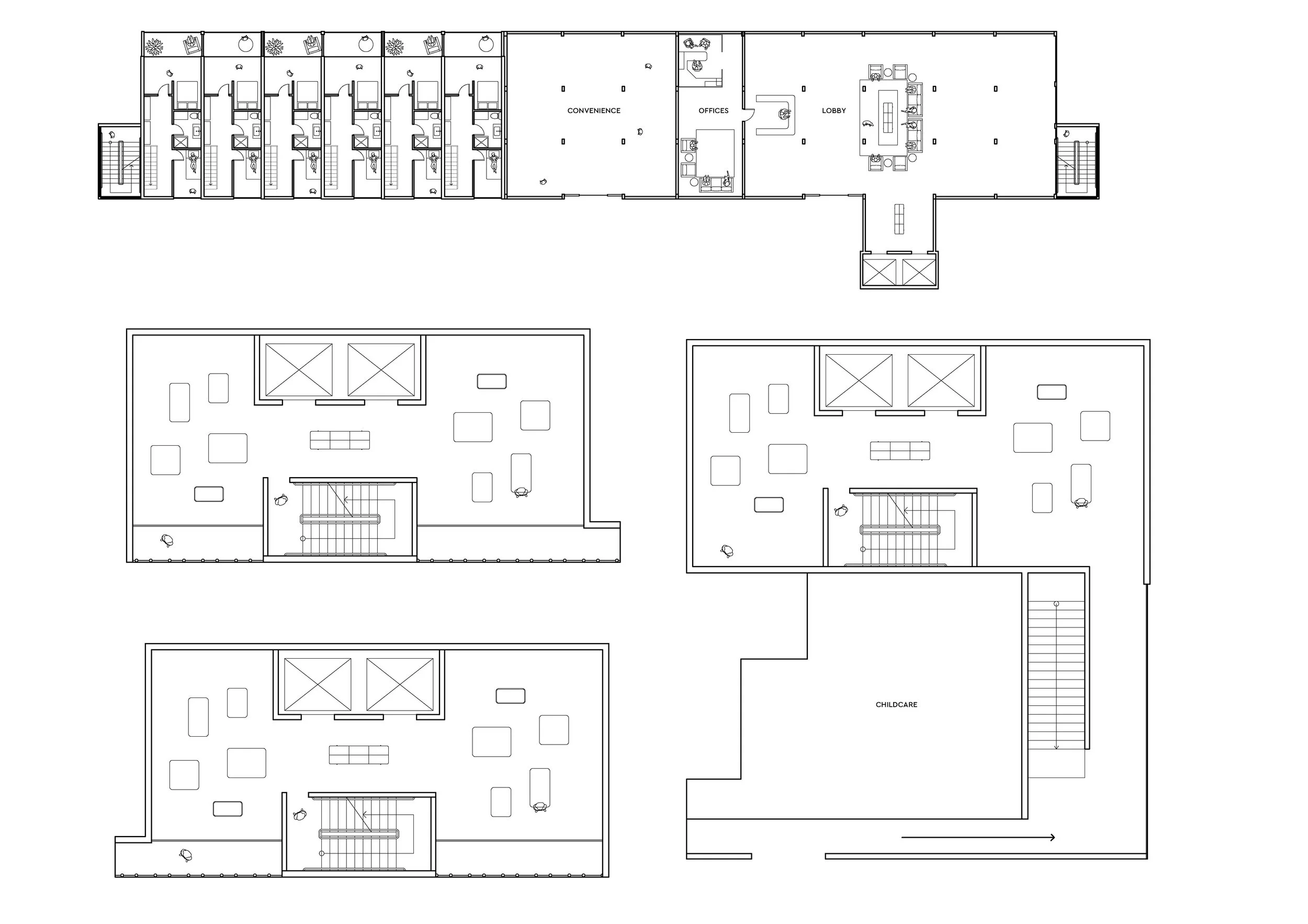
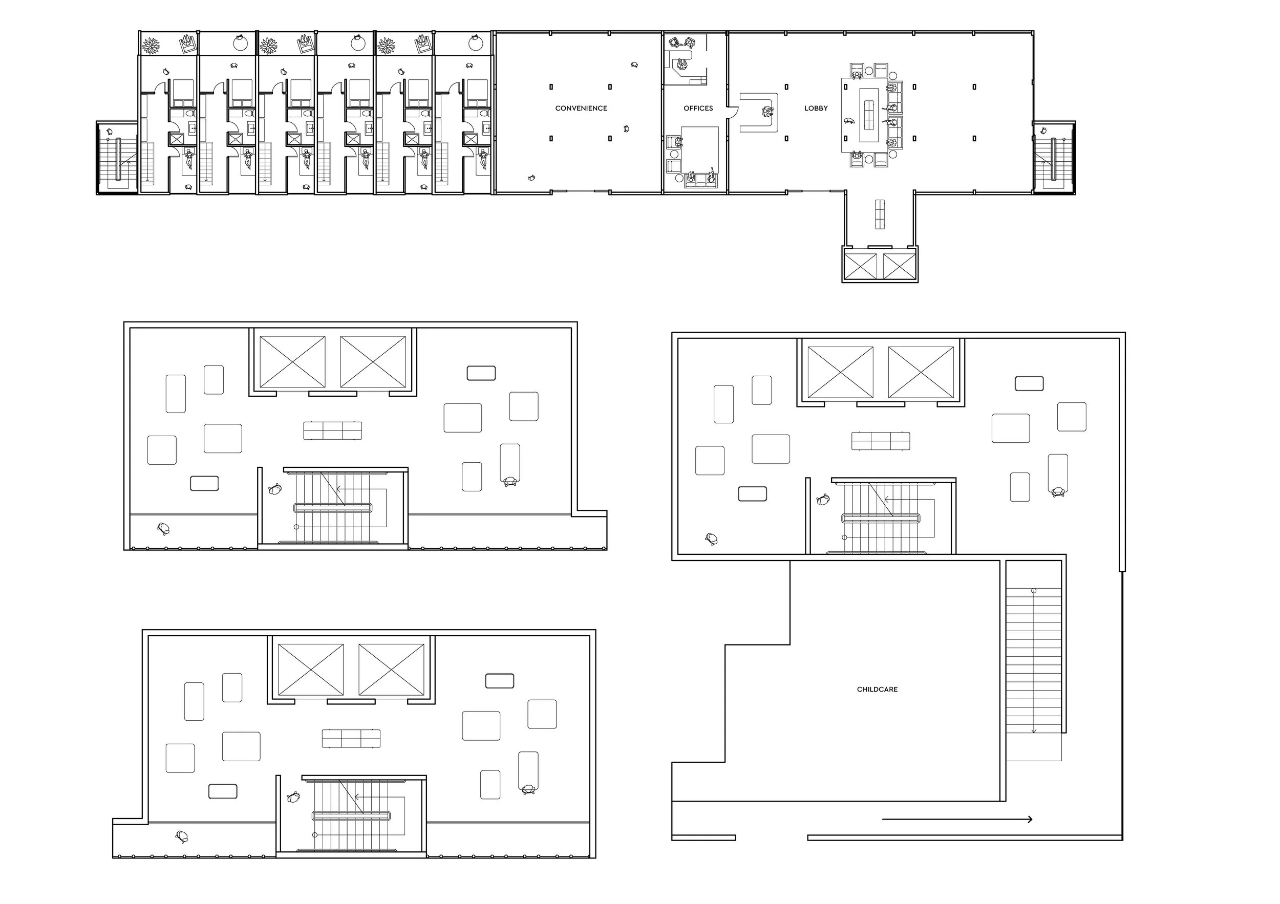
While there are several interven tion to offset environmental interactions with the site, this project provides a opportunity to explore a alternative way of living for families which in the long-term could have a great affect on Auckland where house prices continue to increase. High density living is the future thus exploring alternatives to shift social mindset is important. Creating interventions like this aim to create a non-alienating experience for users who left suburban housing by enhancing those experiences they are used too within a new style of living This project will bring life to a otherwise gloomy site, creating communal experiences that will help younger generations in less fortunate families still enjoy apartment style living.

Previous
Previous

Waihorotiu Metro Centre

Next
Next

Passive Housing